Kontaktcenter
Skicka e-post till kommunen (e-postmeddelanden blir en allmän handling)
Ring kontaktcenter på telefon: 0371-810 00
Felanmälan och synpunkter
Ställ en fråga
Lämna en synpunkt eller gör en felanmälan
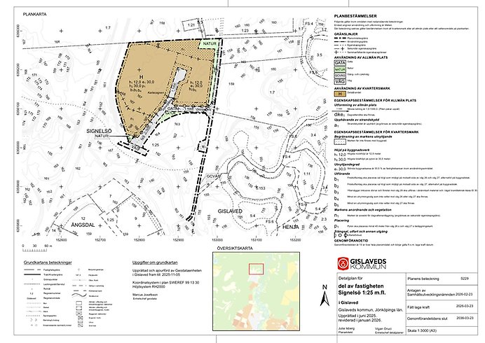
Detaljplan för del av fastigheten Signelsö 1.25 m.fl. i Gislaved
Gislaveds kommun har som avsikt att möjliggöra etablering av handelsområde norr om befintligt handelsområde Smålandia, enligt den fördjupade översiktsplanen för Gislaved och Anderstorp (antagen 2024-06-17).
Syftet med planen är att möjliggöra etablering av handel i ett synligt läge längs väg 26. Planen syftar också till att förbättra och öka kapaciteten för gång-, cykel- och bilvägar i området, så att de kopplas samman med det befintliga Smålandia. Den möjliggör också etablering av Biltema.
Detaljplanen har fått laga kraft den 23 mars 2026.

Plankarta
Sidans innehåll senast uppdaterat:
Saknar du något på denna sida?
Saknar du information på den här sidan, eller har du förslag på hur vi kan förbättra den? Fyll gärna i formuläret och berätta vad du tycker.