Kontaktcenter
Skicka e-post till kommunen (e-postmeddelanden blir en allmän handling)
Ring kontaktcenter på telefon: 0371-810 00
Felanmälan och synpunkter
Ställ en fråga
Lämna en synpunkt eller gör en felanmälan
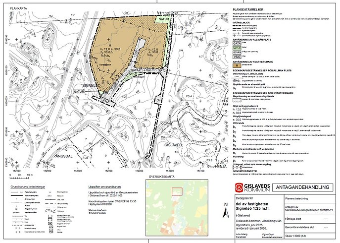
Detaljplan för del av fastigheten Signelsö 1.25 m.fl., i Gislaved
Steg i processen:
- Uppstart detaljplan
- Samråd
- Granskning
- Antagande
- Laga kraft
Syftet med planen är att möjliggöra etablering av handel i ett synligt läge längs väg 26. Planen syftar också till att förbättra och öka kapaciteten för gång-, cykel- och bilvägar i området, så att de kopplas samman med det befintliga Smålandia. Den möjliggör också etablering av Biltema.
Planområdet är beläget i norra delen av Gislaveds tätort och avgränsas av riksväg 26 och Trafikplats Norra. Detaljplaneförslaget innebär en möjlig utveckling och förstärkning av den befintliga handelsplatsen i området.
Planen är antagen.
Den 23 februari 2026 antogs detaljplanen av samhällsutvecklingsnämnden.
Planhandlingar
Samrådsredogörelse Pdf, 198.8 kB.
Granskningsutlåtande Pdf, 130.5 kB.
Information
För mer information eller frågor om planen kontakta kommunens kontaktcenter.

Plankarta (Antagandehandling)
Sidans innehåll senast uppdaterat:
Saknar du något på denna sida?
Saknar du information på den här sidan, eller har du förslag på hur vi kan förbättra den? Fyll gärna i formuläret och berätta vad du tycker.